Appartamento in vendita a Ravenna

255.000 €
90 m²
Superficie
5
Locali
2
Camere
1
Bagni
1
Box
in vendita
appartamento
Ravenna
Descrizione
🏡 ATTICO IN VENDITA – RAVENNA, ZONA COMET (VIA VALITUTTI)

Vendesi splendido attico al secondo e ultimo piano con ascensore, situato in contesto recente e ben servito nella zona Comet di Ravenna.
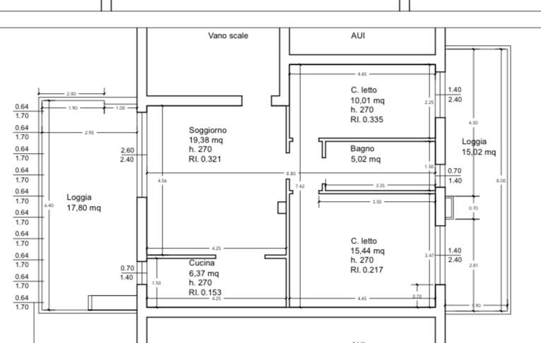
L'immobile è composto da:
Luminoso soggiorno con accesso diretto alla loggia
Cucinotto separato
Camera da letto matrimoniale
Camera singola
Bagno finestrato
Due ampie logge abitabili e verandate con vetrate apribili, regolarmente autorizzate con pratica comunale
Completano la proprietĂ :
Garage e cantina al piano seminterrato
Dotazioni e comfort:
Aria condizionata
Zanzariere
Tapparelle motorizzate
Cappotto termico
Predisposizione per pannelli solari
Prezzo non trattabile.
Per informazioni aggiuntive prego contattare telefonicamente solo in orari d'ufficio (dal lunedì al venerdì 9.30-12.30 e 16.30-19.30) l'agenzia immobiliare StudioTec, via Mazzini 14/a Ravenna, Geom. Castagnari barbara al 3342011609
Caratteristiche principali
Codice:
Cir280
CittĂ :
Ravenna
Categoria:
Appartamento
Spese condominiali:
600 € / anno
Locali:
5
Camere:
2
Bagni:
1
Mq:
90
Box:
1
Mq Box:
18
Terrazzi:
2
mq Terrazzo:
35
Piano:
2
Anno:
2013
Classe energetica:
C
96,94
Stato Immobile:
Buono
Grado:
Signorile
Posizione:
Centro
Panorama:
Vista Aperta
Orientamento:
Sud Est
Lati Liberi:
2
Giardino:
No
Arredi:
Arredato
Tipo Soggiorno:
Sala da Pranzo
Tipo Cucina:
Abitabile
Riscaldamento:
Autonomo
Tipo Riscaldam.:
Caldaia
Tipo Impianto:
Radiatori
Fonte Energetica:
Gas
Acqua Calda:
Autonoma
Raffrescamento:
Split
Infissi:
Legno Doppio Vetro
Serramenti:
Ottimo
Persiana:
Tapparella Metallo
Pavim. Giorno:
Ceramica
Pavim. Notte:
Parquet
Pavim. Cucina:
Ceramica
Pavim. Bagno:
Ceramica
Accesso Disabili:
No
Accesso interno disabili:
Parziale
Isolamento termico:
Cappotto interno
Destinato a residenti:
Si
Accessori
Aria Condizionata
Ascensore
Tapparelle Elettriche
Planimetrie
Video
Virtual tour
Mappa
via valitutti - Ravenna (RA)
Cookie preference